www.cauta-imobiliare.ro
 
Inapoi (lista oferte)  Cod oferta: va1180602  |  Publicata la data: 2025-11-20 Adauga la favorite Trimite pe mail Print

Apartament de vanzare in
Galati , zona Bloc Nou

150.000 euro
Tip:
D
Suprafata:
80 mp
Etajul:
1 din 4
Camere:
2
Bai:
1
Balcoane:
2

Utilitati si imbunatatiri:

  • mobilat: nu
  • incalzire: centrala termica
  • gaz metan
  • apometre
  • parchet
  • gresie + faianta
  • termopan
  • usa metalica

Specificatii:

Agentia imobiliara Imob Grup Expert va propune spre achizitionare un apartament format din doua camere si dependinte amplasat intr-un bloc nou, finalizat in anul 2023, situat intr-o zona foarte buna, centrala, mai precis pe strada Morilor - reper casa de Cultura a Sindicatelor.
Constructie noua, realizata cu simt de raspundere din caramida porotherm, izolata cu polistiren de 10 cm.
Apartamentul este finisat complet si beneficiaza de centrala termica si sistem de incalzire in pardoseala, aer conditionat, gresie, faianta, parchet, tamplarie pvc cu geam termopan (trei randuri de sticla), tavane extensibile, travertin.
Blocul este dotat cu ascensor modern, cu acces de la subsol (locuri de parcare) si pana la ultimul etajul.

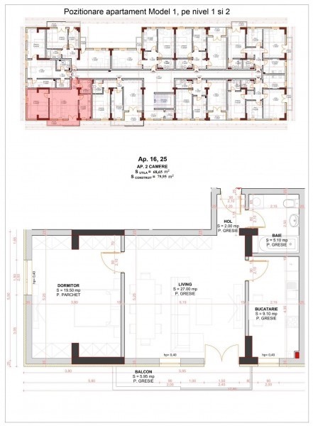
ULTIMUL APARTAMENT DISPONIBIL !!!

Apartament format din doua camere si dependinte; cu o suprafata utila de 68,65 mp cu un balcon in suprafata de 5,95 mp. Suprafata construita totala: 79,95 mp.
Apartamentul este intabulat, actele sunt la zi, situatie juridica clara, liber, disponibilitate imediata.

Pret vanzare: 150.000 Euro + T.V.A aferent legii si fiecarei situatii

VA RECOMANDAM VIZIONAREA ACESTUI IMOBIL !!!

Informatii contact:

Agentia Imobiliara:
Imob Grup Expert

Agent: Mihaela
0749374726
Trimite mesaj:
Numele dvs:*
Tel. dvs:*
Emailul dvs: